STUDY/
光の物語
TOP
ABOUT US
AWARD
PROJECT/
感じる光
STUDY/
光の物語
CONTACT
RECRUIT
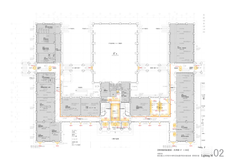
東京農工大学農学部本館改修
Copyright © Lighting M Inc. All rights reserved.